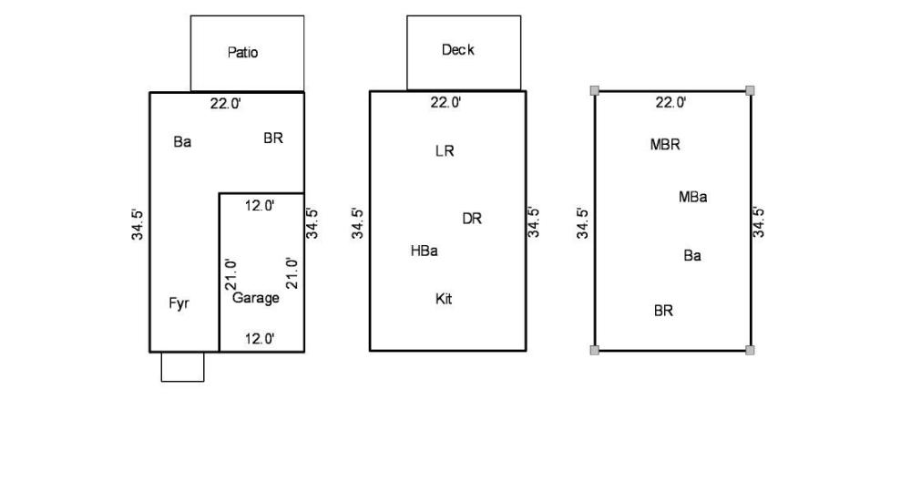
Experience the perfect blend of comfort, style, and convenience in this beautifully maintained 3-bedroom, 3.5-bathroom townhome featuring a 1-car attached garage and a spacious dual-level layout. This move-in ready home welcomes you with a bright and inviting living room complete with a charming fireplace, creating the perfect setting for relaxing evenings or entertaining guests. The modern kitchen is fully equipped with quality appliances, ample cabinetry, and generous counter space, making it ideal for everyday living and culinary enthusiasts alike. Step outside to enjoy a private patio and deck, perfect for outdoor dining, entertaining, or simply unwinding in your own rare hidden oasis. With a thoughtfully designed floor plan offering comfort and functionality across multiple levels, this home provides plenty of space for both privacy and gathering. Ideally located just minutes from major highways, shopping centers, restaurants, and everyday conveniences, while also within walking distance to nearby schools, this property truly offers the best of accessibility and peaceful living. Don’t miss the opportunity to make this exceptional townhome your next home.
| MLS#: | 4342150 |
| Price: | $1,995 |
| Square Footage: | 2025 |
| Bedrooms: | 3 |
| Bathrooms: | 3.1 |
| Acreage: | 0.01 |
| Year Built: | 2008 |
| Type: | Townhouse |
Based on information submitted to the MLS GRID as of 2026-03-19 06:00:00. All data is obtained from various sources and may not have been verified by broker or MLS GRID. Supplied Open House Information is subject to change without notice. All information should be independently reviewed and verified for accuracy. Properties may or may not be listed by the office/agent presenting the information. Some IDX listings have been excluded from this website.
Contact An Agent:














